Bedrijfsruimte / Amsterdamsestraatweg 170 in Utrec…
3551CM Utrecht (Utrecht, U) (1218x bekeken)
Omschrijving
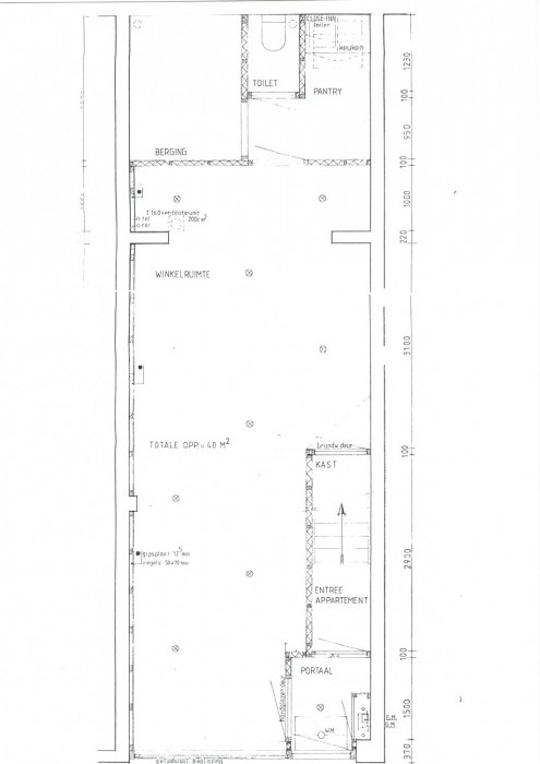
Omschrijving: Deze zeer fraaie recent gerenoveerde bedrijfs- c.q. winkel- c.q. kantoorruimte is gelegen aan de langste winkelstraat van Nederland. De Amsterdamsestraatweg is een 5 kilometer lange, kaarsrechte straat die loopt van de Weerdsingel Westzijde tot aan Zuilen-Noord. Deze "bestrate weg" is in 1812 in opdracht van Napoleon Bonaparte aangelegd, en was tot ver in de 20e eeuw de belangrijkste route van Utrecht naar Amsterdam. Bestemming is dienstverlening / kapper is niet mogelijk ! INDELING: Eigen ingang via de gedeelde hoofdingang aan: de Amsterdamsestraatweg 170 in Utrecht. Voor- en winkeldeur zijn voorzien van digitale veiligheidssloten. Winkelruimte: De winkelruimte is in showroom staat, plavuizen vloer met patroon en opstap halverwege de winkelruimte, wanden zijn van gipsplaat en rondom wit gesausd, inclusief het plafond, deuren okergeel geschilderd, led verlichting via spotjes in het plafond, draadloze deurbel, bluetooth speakers in het plafond om muziek te streamen, verwarming via radiatoren, schilderijrails rondom, bergkast onder de trap met lease stofzuiger. Pantry: Voorzien van keuken met hardstenen aanrechtblad en RVS spoelbak, zeepdispenser, keukenrol houder, RVS handdoek haken, afvalemmer, warm water via elektra boiler, lichtkoepel aanwezig en kan open t.b.v. extra ventilatie. Toilet: Vrij hangend toilet met luxe wandtegelwerk. Berging: Voorzien van lease vaatwasser, lease wasmachine, lease wasdroger, lease koel- vriescombinatie en lease elektra boiler, mechanische ventilatie in plafond met timer functie aanwezig. Lease apparatuur en WIFI internet zijn inbegrepen in de maandelijkse huurprijs. HUURPRIJS: € 1.350,00 per maand, (B.T.W. is niet van toepassing) Voorschot t.b.v.: gas-, water-, elektra kosten en bijkomende belastingen van overheidswege: € 150,00 per maand. Borg: 03 maandhuren is: € 4.500,00. Beschikbaar per: 01 januari 2026. Minimale huurtermijn: 12 maanden, per jaar verlengbaar.
Geïnteresseerd? Mail ons dan snel, een bezichtiging kan vaak al op korte termijn ingepland worden, ook in de avonduren of op zaterdag is mogelijk, zondag zijn wij gesloten. Kenmerken
Soort:
Kantoorruimte, Showroom, Winkelruimte, Bedrijfsruimte
Ligging:
Aan de langste winkelstraat van Nederland gelegen
Adres:
Amsterdamsestraatweg 170
Postcode:
3551CM
Huur/koop:
Te huur
Prijs:
1.350,00 per maand
Bouwjaar:
1905
Bedrijfspanden in de regio







